At an iconic urban address, a landmark, all-suite residential community presents a collection of distinctive living experiences ranging from extremely rare to one-of-a-kind.
LIVING THAT’S LARGER THAN LIFE.
THE SUITES AT ONE BONIFACIO HIGH STREET
In every great urban destination across the world exists a cosmos of discovery, enrichment, refinement. The very best of life as we’re living it today and for generations to come.
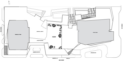
In Bonifacio Global City (BGC), at the center of this universe, Ayala Land Premier positions The Suites at One Bonifacio High Street. A landmark, 63-storey, single tower residential community, anchoring this dynamic growth center as the singular residential aspect of One Bonifacio High Street, an iconic urban address locating the city’s finest retail, business, and lifestyle destinations.
298 generously sized residences are presented in two collections: The Suites Collection and The Sky Collection, including a noteworthy selection of Sky Villas. These are residences of great distinction and form a very limited inventory.

ONE BONIFACIO HIGH STREET
Bonifacio High Street is a kilometer-long lifestyle destination traversing the heart of Bonifacio Global City. Beginning with The Shops at Serendra, Bonifacio High Street creates an enhanced walking experience with unique, highly urban encounters: a panorama of retail and entertainment; interactive art and play pieces; abundant landscapes and open spaces.
This vibrant lifestyle spectrum culminates in BGC’s landmark address, One Bonifacio High Street. A mixed-use development bringing together prime retail, office spaces, and The Suites, it is a setting of iconic, timeless elegance.
PUBLIC ART AND RECREATIONAL SPACES
BGC’s signature style: art and recreational encounters engaging you on the street. Some changing, some on permanent display – a gallery of life on a citywide scale.
- Ang Supremo by Ben-Hur G. Villanueva (I)
- Balanghai by Leo Gerardo (II)
- The Trees by Reynato Paz (III)
- Kasaysayan Bawat Oras by Juan Sajid de Leon Imao (IV)
- Kasalikasan by Jerry Araos (V)
- Transformation by Lor Calma (VI)
- Pasasalamat by Ferdie Cacnio (VII)
- Bearable Lightness (VIII)
- Hearsay (IX)
- Presence by Reg Yuson (X)
- Tinstaej #85 by Conrado Velasco (XI)
- Specific Gravity by Reg Yuson (XII)
- BGC Offsite Gallery (XIII)
- Revival (XIV)
Bounded by the 28th Street, 3rd Avenue, and the major road network of the 5th Avenue, One Bonifacio High Street cultivates BGC’s live, work, play lifestyles into fruition.
BUILDING FEATURES
EFFICIENCY FEATURES
- Motion sensors for lights in select common areas
- Maximized natural ventilation for common areas
- Efficiency features for common area toilet fixtures
SAFETY AND SECURITY
- Fully addressable fire detection and alarm system
- 24-hour security and building maintenance
- Proximity card elevator access for security
- 100% back-up power (Common Areas, Suites, Sky Villas)
CONVENIENCE AND SERVICES
- Exclusive motorcourt
- Five (5) air-conditioned passenger elevators
- One (1) dedicated service elevator
- Appurtenant parking slots for every unit
- Air-conditioned ground floor lobby
- Centralized sanitary disposal system
- Direct residents-only access to the retail shops at One Bonifacio High Street
AMENITIES, FACILITIES, AND SERVICES
- Lap Pool
- Recreational and Children’s Pools
- Fully Equipped Fitness Center
- Social Hall
- Children’s Play Areas
- Dedicated Residential Administration Office
- Concierge
- Mail Room
THE SUITES COLLECTION
Subtle living refinements such as larger-than-usual unit areas characterize this landmark all-suite residential community.
THE SKY COLLECTION
Beginning at the 47th floor, the rarest of the rare in living experiences, each distinctive Sky Suite and Sky Villa is an effortless statement on refined urban lifestyles.






PROJECT FEATURES
With fine quality finishes, large open plans, and abundant natural light and ventilation, an unparalleled quality of life is presented by every aspect of The Suites at One Bonifacio High Street.
UNIT FEATURES
- Intuitively designed branded kitchens with built-in appliances (cooktops, rangehoods)****
- Other appliances provided in the unit:
- Air-conditioning units for all living, dining areas, and bedrooms*
- Water heaters for kitchen and bathrooms**
- Individual metering for water and electricity
- Maximized natural ventilation
- Guest annunciator system
- CATV provision for all bedrooms and living areas
- Provision for 2 telephone line service providers per unit
- Telephone outlets in all bedrooms*, living, dining areas
- Duress button in master bedrooms
- Sliding door for select balconies
INSIGHTFUL UNIT LAYOUT, SPACIOUSNESS, AND FREEDOM OF MOVEMENT
- Gourmet and utility kitchens in all 3BR and 4BR Suites
- Service access for all 3BR and 4BR Suites
- Spacious shower areas in all master bathrooms
- Double vanity sink for master bathrooms in select 2BR Suites, all 3BR, and 4BR Suites
- Linen cabinets are provided in select 3BR and 4BR Suites
ABUNDANT NATURAL LIGHT, VENTILATION, AND AIRINESS
- Maximized views in all living rooms with select units having floor-to-ceiling windows
- Select master bathrooms benefit from abundant natural light, with some units featuring a free-standing bathtub
- Natural light and ventilation in all maid’s rooms
- Maximized natural ventilation in hallways
PREMIUM FINISHES AND FIXTURES
- Natural stone floors in foyer, living, dining, and gourmet kitchen areas of all 3BR, 4BR Sky Suites, and all Limited Edition Sky Villas
- Engineered wood floors in living and dining areas of all 2BR Suites
- Engineered wood floors in all bedrooms*
- Natural stone flooring in all master bathrooms
- Homogenous tile flooring in all secondary bathrooms
- Solid surface countertops for master bathrooms in all Limited Edition Sky Villas
- Solid surface countertops in all kitchens***
- Kohler® ang Grohe® (or equivalent) bathroom fixtures**
* except maid’s room
** except maids’ T&B/utility areas
*** except utility kitchen
**** in select 3BR and 4BR Suites (with utility kitchens), appliances provided only in main kitchen
PREMIER PARTNERS
- GF & Partners, Architects – ARCHITECTURAL DESIGN
- Sy^2 + Associates, Inc. – STRUCTURAL ENGINEERING DESIGN
- DCCD Engineering Corporation – ELECTRICAL DESIGN
- DCCD Engineering Corporation – FIRE PROTECTION DESIGN
- DCCD Engineering Corporation – MECHANICAL ENGINEERING DESIGN
- DCCD Engineering Corporation – SANITARY/PLUMBING/ENGINEERING DESIGN
- Makati Development Corporation – PROJECT MANAGER
- Ayala Property Management Corporation – PROPERTY MANAGER
- Langdon & Seah Philippines, Inc. – QUANTITY SURVEYOR
- Meinhardt Philippines Inc. – WINDOW CONSULTANT
- Master Joseph Chau – FENG SHUI CONSULTANT
TURNOVER
Turnover commences in the 4th Quarter of 2018.
Disclaimer: The particulars and visuals shown herein are intended to give a general idea of the project and as such are not to be relied upon as statements of fact. While such particulars and details on present plans which have been prepared with utmost care and given in good faith, buyers are invited to verify their factual correctness and subsequent changes, if any. The contents herein are subject to change without prior notice and do not constitute part of an offer or contract.



